Balinese Spa - Bangalore, IndiaCompleted in 2023A seamless blend of natural elements and earthy colors create harmony, balance, and a connection to nature in this stunning Balinese style spa. Key features include the use of organic materials like wood, bamboo, and stone; a warm, simple color palette of whites, browns, and greens; lush greenery through potted plants; and minimalist aesthetics with clean lines and open, flowing spaces.

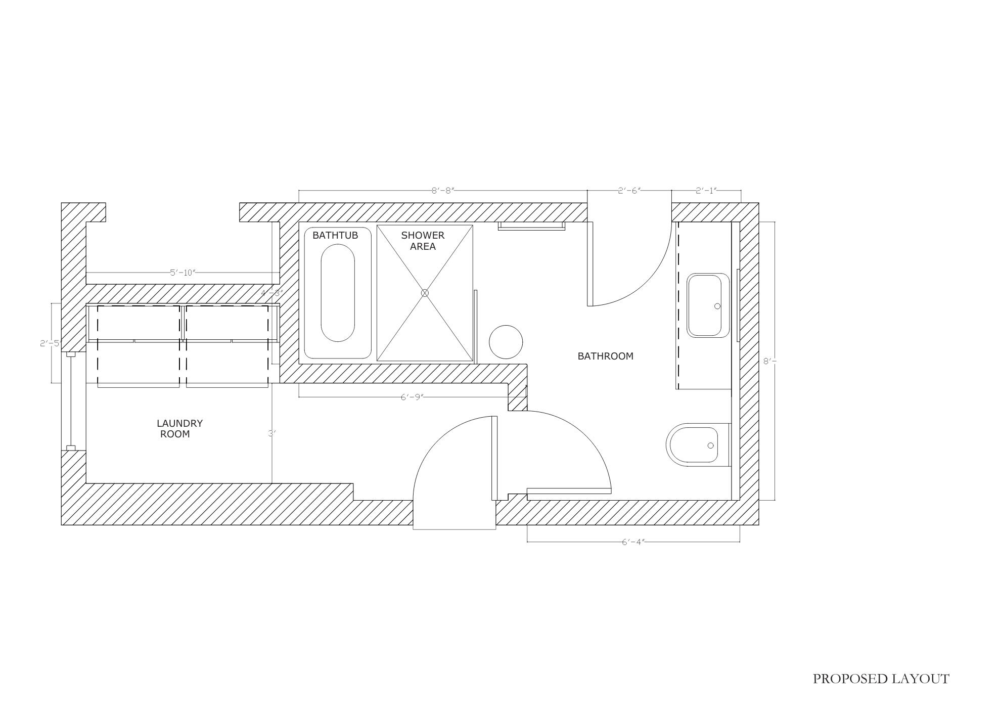
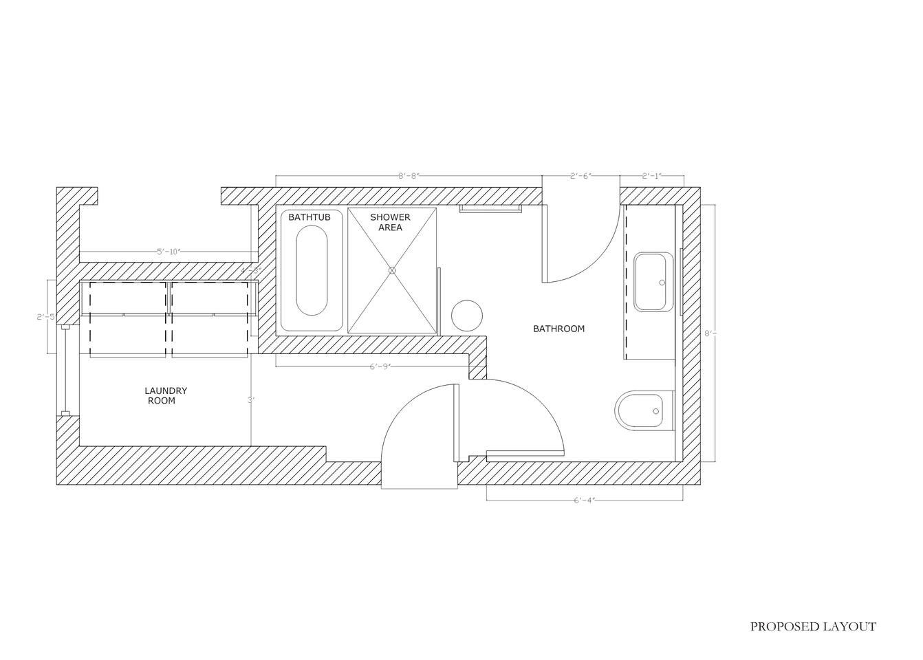
Bathroom Renovation - Barbados, CaribbeanCompleted in 2025Scandinavian minimalism.
With an emphasis on simplicity and functionality, this project focuses on making the most of the space available. The colour scheme evokes a sense of calm and peace. Neutral shades and pastel tones add brightness to the space while the black accents create depth. Natural materials like wood and stone bring warmth and character.

2 Bed Condo - Bangalore, IndiaCompleted in 2024The goal was to create a serene, functional, and aesthetically cohesive home that reflects the clients' creative lifestyle while embracing the Japandi design philosophy. This meant blending Japanese minimalism and Scandinavian warmth, using natural textures, neutral tones, and organic materials to craft a tranquil yet stylish living environment.

Home Office - Connecticut, USACompleted in 2021Mid-century modern.
Seamless cabinets that transform into a desk. The space provides a fully functional and comfortable workspace along with style and comfort.


Karthik's Home - Bangalore, IndiaCompleted in 2019Modern minimalist design.
Warm and earthy color scheme. This home was designed on a limited budget/timeline.


Villa at Gran Carmen - Bangalore, IndiaCompleted in 2019Mid-century modern.
This beautiful villa was custom designed for a family of 4.
The main focus was to create interesting seating areas in the living room and family area.

Japandi themed condo - Bangalore, IndiaA selection of high-resolution renders for a minimalist home, featuring custom Japandi furniture designed with intentional functionality.

Villa Secret Soil - Bangalore, IndiaThese designs and renders were created for the mock-up villa at a gated community in India.

Assetz Sharonika - Bangalore, IndiaThese high-resolution renders were created for the marketing brochures, posters and banners for the sales team.
I worked on this project in collaboration with a leading architecture firm in India.

Villa Bellezea - Bangalore, IndiaThese designs and renders were created for the mock-up villa at a gated community in India.

Moodboards created for various clients at Decorilla - an online design service platform.

A collection of traditional & digital artworks